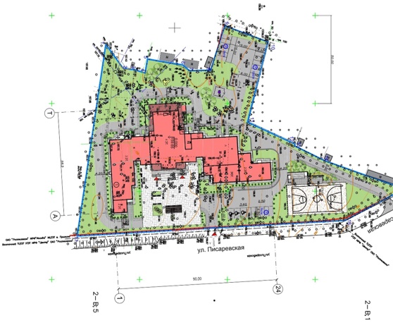
Проект нового здания музыкального колледжа им. С.С. Прокофьева, здание которого планируется построить в Пушкино, получил положительное заключение ГАУ МО «Мособлгосэкспертиза», говорится на сайте администрации Пушкинского района.

Согласно проекту общая площадь здания составит 5758 кв.м. Здание состоит из трех блоков: колледжа на 250 учащихся, музыкальной школы на 600 учащихся и общих помещений. В музыкальном колледже размещаются 2 репетиционных зала, 19 классов, зал на 300 мест, спортивного зала, кафе.

В музыкальной школе будет располагаться три репетиционных зала, 34 класса. Планируемый срок начала строительства 2017 год.
Добавить комментарий
Рублики новостей